Обяви За нас Контакти
Продава 3-СТАЕН
град Пловдив, Христо Смирненски
При запитване
История на цената
Коригирана в 15:46 на 21 януари, 2026 год.
Обявата е посетена 353 пъти.
Площ:
179 m2
Етаж:
5-ти от 7
Строителство:
Тухла, Ще бъде въведен в експлоатация 2027 г.

Описание на имота:


Компания X представя на Вашето внимание тристаен апартамент в кв. Христо Смирненски.

МЕСТОПОЛОЖЕНИЕ: В близост до магазини за хранителни стоки, спирка на градски транспорт, основни пътни артерии.

СТРОИТЕЛСТВО: Апартаментът се намира на 5 етаж в тухлена сграда.

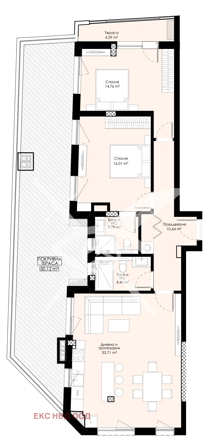
РАЗПРЕДЕЛЕНИЕ: Жилището разполага с площ от 179 кв.м. разпределена в дневна с трапезария, две спални, две бани с тоалетни, входно антре и две тераси.

СЪСТОЯНИЕ: В строеж.

Заповядайте да Ви го покажем. Използвайки нашите услуги Вие ще превърнете закупуването на новия си дом в едно приятно изживяване, ще получите персонален консултант, съдействие при кандидатстване за кредит от всички банки в България, интериорни дизайнери и екип, който да се погрижи за нужните документи по Вашата сделка. На Ваше разположение сме всеки ден, от понеделник до неделя от 09:00 до 20:00ч. Възползвайте се от безплатна консултация в наш офис, където ще ви спестим време и ще ви запознаем с всички актуални имоти в България, отговарящи на Вашето търсене. Нужен ви е само кода към имота: 322-12346
Особености
Тухла
За контакт:
0887779990
Агенция:
ЕКС НВД ООД
088777990
ЕКС НВД ООД logo
В imot.bg от 2023 г.
xnvd_plovdiv.imot.bg
Адрес:
област Пловдив, гр. Пловдив, бул. Мария Луиза 43 А
ИЗПРАТИ ЗАПИТВАНЕ
ИЗПРАТИ ЗАПИТВАНЕТО

Продава 3-СТАЕН
град Пловдив, Христо Смирненски
Обява: 1c172787680489427

При запитване
История на цената

ЗАПАЗИ ОБЯВАТА

Местоположение: град Пловдив, Христо Смирненски

Допълнителни данни за имотите в района и сравнение с други райони

Покажи

Период

и 2 месеца

* Средните цени са определени чрез медианна стойност